Naam: Modelwoning woonflat Ons Huis Kanaleneiland Utrecht
Type: modelwoningen; ,woningbouwcomplexen;
Opdrachtgever: Goed WonenGemeente Utrecht
Uitgevoerd: ja
Architecten: Smets, J.J.A. (Gemeente Utrecht), 1960; Nicolaï-Chaillet, C., 1960, interieur modelwoning -;
Adres: Auriollaan 71, Utrecht;
Archiefgegevens: NAi/Cora a12, t5
Bijzonderheden:

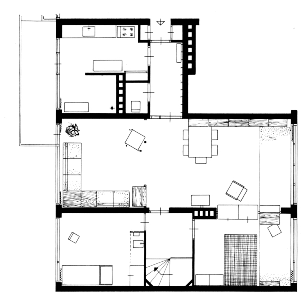
Modelwoning met zes kamers, entree op de eerste verdieping en een binnentrap naar de begane grond. Vanaf het ontwerpstadium was er overleg tussen de Utrechtse Vrouwen Advies Commissie en Goed Wonen. Uitgangspunt was flexibiliteit. Van de L-vormige woonruimte op de eerste etage konden de glaspanelen van de twee scheidingswanden worden weggehaald of vervangen door kasten. Een tussenwandje in de keuken scheidde het koken van de was. De inrichting was voor een onderwijzersgezin met dochter van 16 jaar, een tweeling van 6 jaar en een baby van 8 maanden. De ouderslaapkamer bevond zich in de korte poot van de L, door twee kasten en een glaswand gescheiden van de wooneetkamer. Het middendeel van de woonkamer was open, met bij het raam een kinderspeelhoek tegenover de glaswand van de ouderslaapkamer. De zitbank langs de wand (ontwerp Coen de Vries) bestond uit losse onderdelen met op dezelfde hoogte tafelbladen. De babykamer had een 'groeiset'. Voor de flexibele woonetage zijn door Nicolaï-Chaillet zes maquettes gemaakt voor zes verschillende gezinssamenstellingen.

  Literatuur

Illustraties:

Literatuur wordt geladen ...